30m 和40m 跨度橋架設計
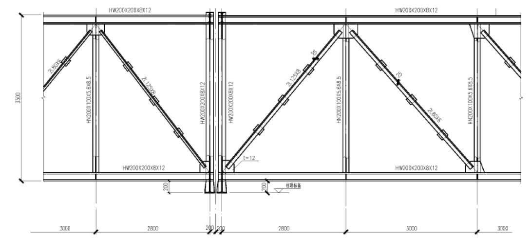
30m 和40m 跨橋架均采用普通鋼結構形式。圖3 為30m 跨橋架斷面結構桿件布置圖, 其上下弦桿件外圍高度為3.4m,考慮到排水及美觀因素,在其頂面用C 型鋼和彩鋼板設置了坡屋頂。在斷面內部的小立柱上布置了3 根通長的10# 槽鋼,用于連接豎向C 型鋼,在C 型鋼上最終連接電纜支架(共7 回),具體如圖3(b)所示。橋架縱向立面如圖4 所示。桁架直接按簡支落在河道兩側的鋼柱上,因此考慮支座處的空間關系,30m 跨2 個端部各留200mm 的距離, 因此30m 桁架在端部的節間長度為2.8m,其余節間長度均為3m,40m 跨和50m 跨度的橋架節間長度同理設置。桁架上弦和下弦每跨均設置了交叉支撐,以保證結構剛度。
圖3 電纜過河橋架斷面結構布置圖

圖4 跨橋架縱向立面布置圖
分析軟件采用SAP2000 有限元分析軟件。過河橋架通廊采用簡支方式落在柱子上,柱子與基礎采用剛接柱腳。雖然過河橋架兩端分別有其他跨連接, 但其他跨的存在主要對柱子內力產生影響,對橋架本身影響可以忽略,因此分析僅取過河段進行研究。SAP2000 中地震荷載模式下,其結構阻尼比默認為0.05,對于鋼結構,調整為0.035。桁架落在兩側鋼柱頂的位置,將其節點的彎矩約束釋放,從而為鉸接。橋架分析整體模型如圖5 所示。
圖5 30m 和40m 跨電纜橋架三維模型示意圖
根據分析結果對結構桿件截面進行了一些調整,30m和40m 跨橋架在桿件截面選擇上的不同在于支座附近的2~3 跨范圍內,40m 跨橋架結構的斜腹桿和上下弦的交叉支撐截面高度比30m 跨的取值要增大。經過計算分析,30m跨和40m 跨結構的整體性能均滿足要求,主要計算結果見表1 所示。
- 上一篇:電纜橋架常見標準,電纜橋架型號字母命名規范 2016/3/1
- 下一篇:激光投線定位法在電纜橋架施工中的應用 2016/2/15
